法国,巴黎,巴黎大学 / BTUA+Groupe-6
世界建筑
05-17
2023
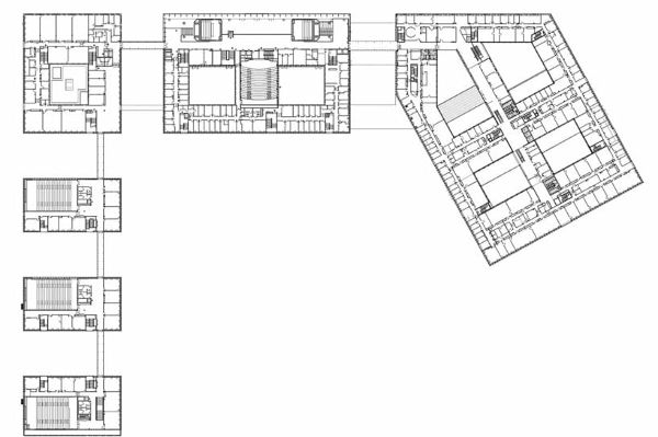
Bernard Tschumi urbanistes Architectes和Groupe-6最近完成了法国最大的教育项目之一,巴黎萨克雷大学的新生物-医药-化学研究和教育大楼。这个耗资2.83亿欧元的项目位于巴黎,是该大学的一个重要科学中心,占地7.4万平方米(80万平方英尺)。该建筑群以玻璃外墙和花纹屏风为正面,由三个独立的教育和研究翼楼组成,由一个被称为“Cœur de Pôle”的中央中庭连接,并设有研究实验室、教室、礼堂、社交空间、餐厅、办公室、后勤区域和地下停车场。
正如设计团队所指出的,“Cœur de Pôle”是巴黎-萨克雷大学的主要入口和十字路口。它引起动态交流,通过清晰的流通和沿着两条连续的内部“街道”的空间分布,鼓励科学合作。Bernard Tschumi和他的团队创造了一个建筑和城市规划,其中包括六座由透明人行桥和一条连续的 "街道 "连接起来的建筑。这种创新的设计跨越了下面的街道,创造了一条高架的、几乎一公里长的动脉,将整个建筑群连接起来。
Groupe-6设计的研究区位于中庭的东面,沿Rue de la Recherche设有最先进的实验室、研究人员的工作空间和愉快的会议场所。设计中特意使用了一些简单的元素,如玻璃、光线和白色的表面,与之形成对比的是使用了穿孔吸音OSB木板,利用可持续的低成本材料创造出视觉上的温暖氛围。该建筑群通过地热井与大学的能源网相连,并获得了符合法国绿色建筑高质量环境标准的认证,具有很高的能源效率。
生物-药学-化学研究和教育中心向巴黎萨克雷大学介绍了最先进的研究和教育设施、精心设计的公共区域和环保建筑材料,通过其建筑展示科学卓越。
“Cœur de Pôle”体现了建筑的独创性,因为它具有组织良好的布局和空间之间的轻松移动。它是跨学科合作的催化剂,鼓励生物学、化学和药学等不同领域的整合。 Bernard Tschumi urbanistes Architects 和 Groupe-6 的最新合资企业将在该大学的扩建中发挥关键作用,并作为其世界知名的科研设施的门户。
项目信息:
项目名称: 巴黎-萨克雷大学
建筑:Bernard Tschumi _urbanistes_ Architectes, Groupe-6
地点:法国,巴黎,巴黎大学













