中国,江苏,硕集幼儿园 / Crossboundaries
世界建筑
09-23
2019

总部位于北京的Crossboundaries在中国江苏省的一个农村地区建造了一所幼儿园,旨在让孩子们与家庭和社区重新联系起来。在同一地区完成了一个类似的项目后,建筑师们再次将幼儿园设计成一个“以村庄的价值观为基础”的建筑网格。

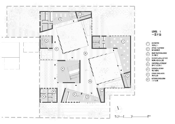
硕集幼儿园位于一个繁华县城的核心地带,被密集的商业街区、事业单位和生产设施环绕,交通十分便利。Crossboundaries认识到这一点,设计了一组独立的多层建筑,为孩子们创造了一个相对封闭和受保护的环境,让他们一起玩耍和学习。

设计团队的方法是鼓励孩子们“边做边学”,从而创造出许多有利于创造力和社会化的游戏区域。Crossboundaries解释说:“组团中的每一栋建筑都为较小的儿童群体提供了一个独立的社区。我们特意将大部分交通空间挪到室外共享的大院里,增加了孩子们社交活动和交流的机会。”

该项目效仿了当地乡村民居的规模和形式,同时以其简化的体量脱颖而出。外立面由两种主要材料组成:朝向场地中心及内庭院的墙面主要由青砖砌成,外墙则一律是对比鲜明的白色灰泥。

Crossboundaries说:“无论是城市还是乡村,教育的目的应该始终是让学生能够自我发展,形成独立的人格,以便在不可预测的未来为自己做出有意义的选择。作为建筑师,我们能做的只是通过我们的设计,引入以儿童为中心的教育理念,与社区的凝聚力需求相协调,使之成为一个‘村庄’。”这应该成为教育工作者和教育环境相关人员的普遍做法,而不是只有一线城市才有的奢侈做法。”






附件:
