英国,住宅 / 罗杰斯建筑事务所

世界建筑

04-14

2021

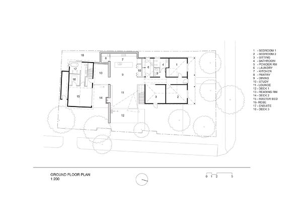
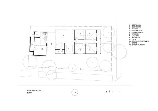
从街道的景观方面来看,只有极个别的角度可以瞥到屋顶扩展延伸的结构。该项目是由damian罗杰斯建筑事务所设计的,通过使两栋建筑现有的屋顶形式链接使其成为了一个大胆抽象的体积。建筑师是通过建立低层柯尔顿屋顶由三角形、成角的方案似乎折叠在一个玻璃体积来表达对传统住宅和周围街景同情,反过来,创建房子新公共领域。

阳光从树叶间隙漏出来拥抱建筑,成为了美好景观的一部分。同时,釉面屋顶漂浮在上方,好像树木分支上的一片叶子连接内部外部的景观,同时捕获绿色植物和天空视图。另外,楼梯边上提供从屋顶生长的可食用的花园种植物,这样的景观通常也会称为介绍住宅建筑内部灵魂的扩展。

(如有侵权,请联系删除)
附件: